Добро пожаловать на http://vipplan.ru

Випплан Севастополь - это тысячи проектов домов в нашем каталоге!

Вы всегда сможете найти для себя проект дома вашей мечты! Даже если этого не случилось, мы готовы в любую минуту предложить проект индивидуального дома.

Забыли пароль?
Вы еще не регистрировались?

Перейдите по ссылке ниже на страницу регистрации.

Регистрация...

Внимание!!!

В проектную документацию могут быть внесены изменения любой сложности, в соответствии в Вашими пожеланиями!

Полезные статьи

Закладка фундамента дома

Закладка фундамента является одним из первых и самых главных этапов строительства любого дома. Все здание опирается именно на эту часть конструкции. Поэтому главная функция фундамента заключается в том, чтобы нести на себе весь вес несущих стен и кровли, а значит предотвращать появление перекоса стен, проседание сооружения, что неизбежно приводит к образованию трещин в стенах здания и в фундаменте....

Купить готовый проект дома или заказать индивидуальный?

Перед началом строительства дома возникает необходимость в проекте дома и тут встает вопрос: Купить готовый проект дома или заказать индивидуальный на заказ? Каждый из вариантов по своему хорош и имеет как свои плюсы так и минусы...

Проекты домов и коттеджей > Каталог проектов домов > Проект двухэтажного дома с гаражом Vg1078

Проект двухэтажного дома с гаражом Vg1078

Проект двухэтажного дома с гаражом
Зарегистрируйтесь

Проект № Vg1078


Техническое описание
Общая площадь: 139.98 м2
Жилая площадь: 73.45 м2
Высота здания: 9.1 м
Размеры дома: 14.1м×11.4м
Кол-во комнат: 4
Цокольный этаж: нет
Гараж: нет
Мансарда: нет

Kонструкция
Фундамент: Свайно-ростверковый
Перекрытия: Деревянные балки
Материал стен: Газобетон

Архитектурный раздел
Конструктивный раздел
Инженерный раздел
АР+КР - 52 000 (Со скидкой 20%)
АР+КР+ИР - 101 000 (Со скидкой 50%)
Проект индивидуального двухэтажного жилого дома с размерами здания 14,10 x 11,40 м. Наружная отделка здания – сайдинг ( двух цветов). Фундамент – свайно-ростверковый (буронабивной). Наружные стены – из пенообетонных блоков, с утеплением между обрешеткой и отделкой сайдингом. Внутренние стены - из газобетонного блока. Перегородки – ГКЛ на металлическом каркасе. Пол первого этажа - пол по грунту. Межэтажное и чердачное перекрытие- деревянные балки. Крыша четырехскатная. Кровля – металлочерепица. Окна — металлопластиковые
Генплан застройки участка / Паспорт проекта 7000 руб / 10000 руб
Инженерный раздел (полный) 49000 руб (70000 руб)
Смета на строительство 35000 руб
Теплотехнический расчет материалов стен Бесплатно
Стоимость проекта со незначительнми изменениями 61500 руб
Стоимость проекта со средними изменениями* 72000 руб
Стоимость проекта со значительными изменениями** 74800 руб

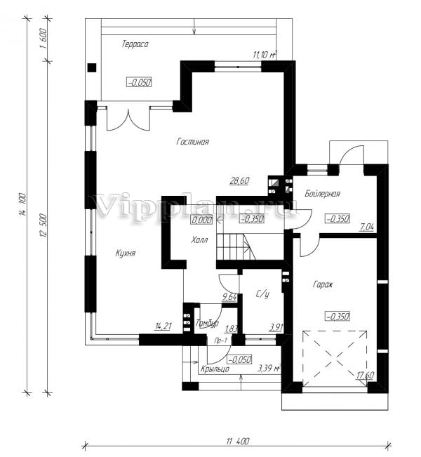
План первого этажа


Тамбур — 1,83 м2
Холл — 9,64 м2
С/у — 3,91 м2
Гостиная — 28,60 м2
Кухня — 14,21 м2
Бойлерная — 7,04 м2
Гараж — 17,60 м2

Проект двухэтажного дома с гаражом

Проект двухэтажного дома с гаражом

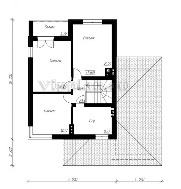
План второго этажа


Холл — 2,53 м2
Спальня — 15,99 м2
Спальня — 16,09 м2
Спальня — 12,77 м2
С/у — 8,57 м2
Проект двухэтажного дома с гаражом Проект двухэтажного дома с гаражом Проект двухэтажного дома с гаражом Проект двухэтажного дома с гаражом

Модификации проектов

Внесение изменений и привязка к участку строительства

В любой из проектов от компании VIPplan - Севастополь по вашему желанию могут быть внесены изменения в материалы стен, материалы наружной отделки дома, а также будет произведена адаптация проекта под конкретный регион строительства (с учетом грунтов региона, геологических особенностей вашего участка и местных климатических условий) - БЕСПЛАТНО !!! (кроме проектов со скидкой и проектов наших партнеров).

Любой из проектов, размещенных на сайте sevastopol.vipplan.ru мы можем выполнить из требуемых вам строительных материалов: ячеистый бетон (газобетон, пеноблок), керамоблок, кирпич, шлакоблок, бетонный блок, дерево (брус, клееный брус), каркасная технология (деревянный каркас, металлокаркас (ЛСТК)).

Фасад дома и его наружную отделку так же возможно выполнить с применением различных облицовочных материалов: структурной штукатурки, (с утеплителем и без), сайдингом (пластиковый или металлосайдинг), фиброплитами, кирпича.

 
6 Избранные
проекты

Доставка проектов по России: Москва (Московская область), Санкт-Петербург (Ленинградская область), Краснодар, Ростов-на-Дону, Ставрополь, Сочи, Волгоград, Новосибирск, Белгород, Брянск, Воронеж, Саратов, Хабаровск, Астрахань, Нальчик, Владикавказ, Екатеринбург, Тюмень, Самара, Нижний Новгород, Казань, Пермь, Уфа, Челябинск, Красноярск, Ханты-Мансийск, Иркутск, Курган, Оренбург, Омск, Томск, Барнаул, Новокузнецк, Кемерово, Абакан, Чита, Якутск, Южно-Сахалинск, Петропавловск-Камчатский и страны ближнего зарубежья: Белоруссия, Украина, Казахстан